GLUCK+

Sunnyside Studios

Plug in, roll out

Queens, NY

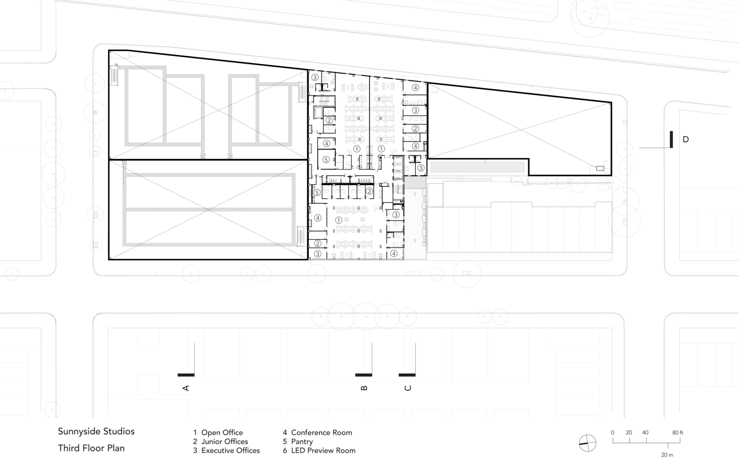
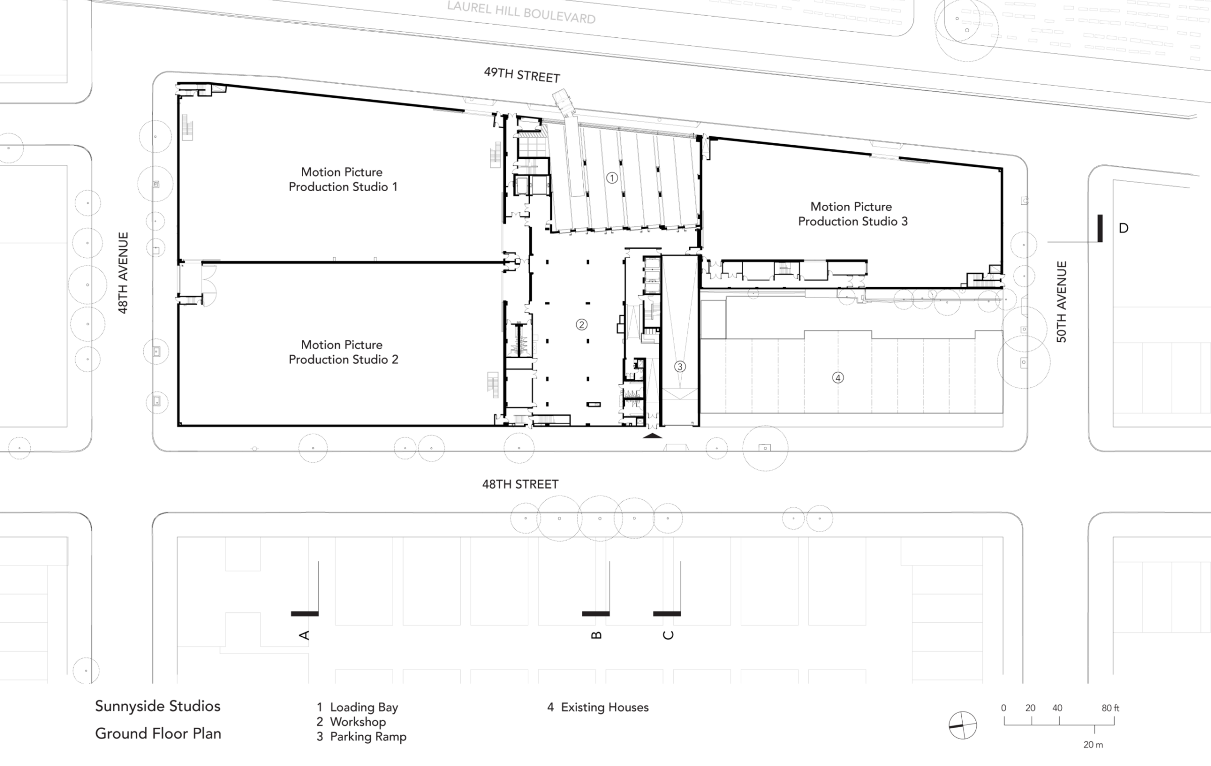
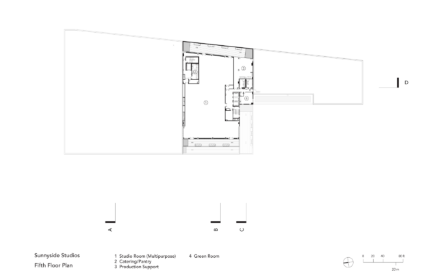
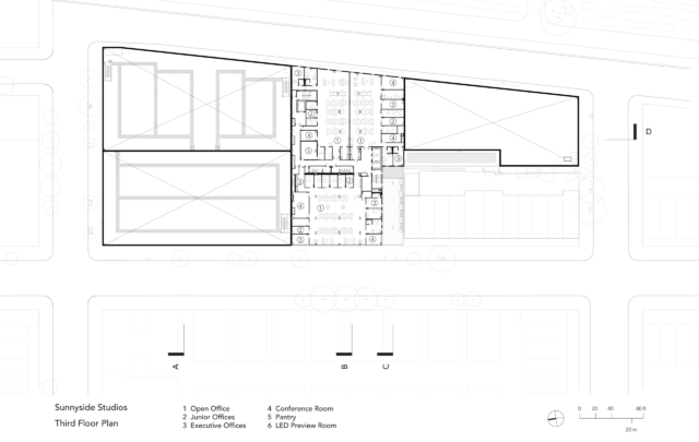
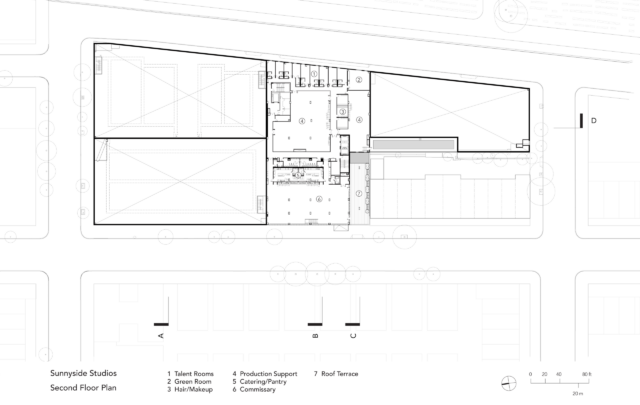
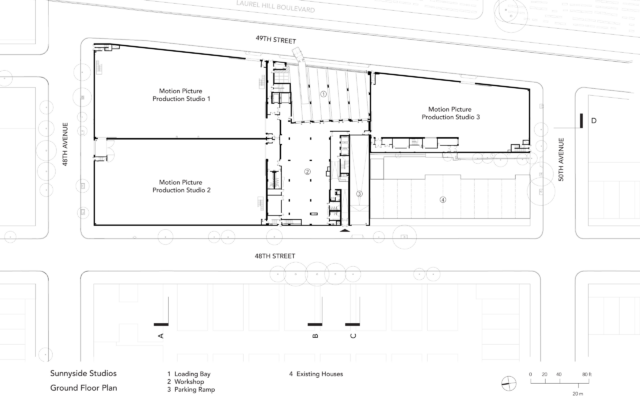
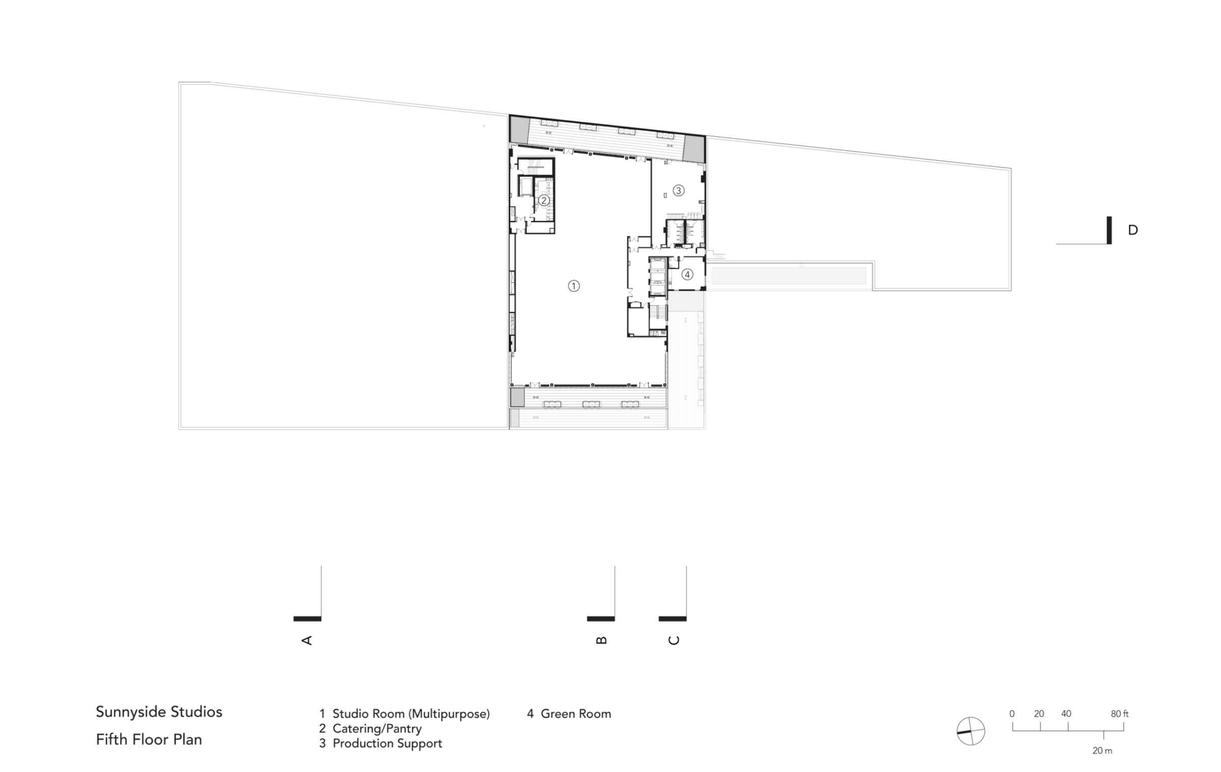
Sunnyside Studios embodies a distinctive approach to the soundstage typology, transforming a manufacturing-zoned block into a hub for film and television production. Three column-free soundstages anchor the ground floor, offering flexible and soundproof studio space fully equipped for next-generation XR/VR production workflows. A five-story production hub nestles between them, housing offices, support spaces, and a rooftop multipurpose studio that doubles as event space with views of the Manhattan skyline. Designed to accommodate a broad spectrum of production types, the building’s logic is driven by the circulation of equipment, crew, and talent. A rhythmic facade keeps the building in conversation with the street, while terraces above open it to the neighborhood.

Commercial 350,000 sf Completed in 2025 Architect

Photographs

Drawings

Type
Commercial
Size
350,000 sf
Year
2025
Scope
Ground Up
Role
Architect
LocationLoc.
Urban
 
48-37 48th Street, Woodside, NY 11377