GLUCK+

1510 Broadway Affordable Housing

Three angles and a courtyard

Brooklyn, NY

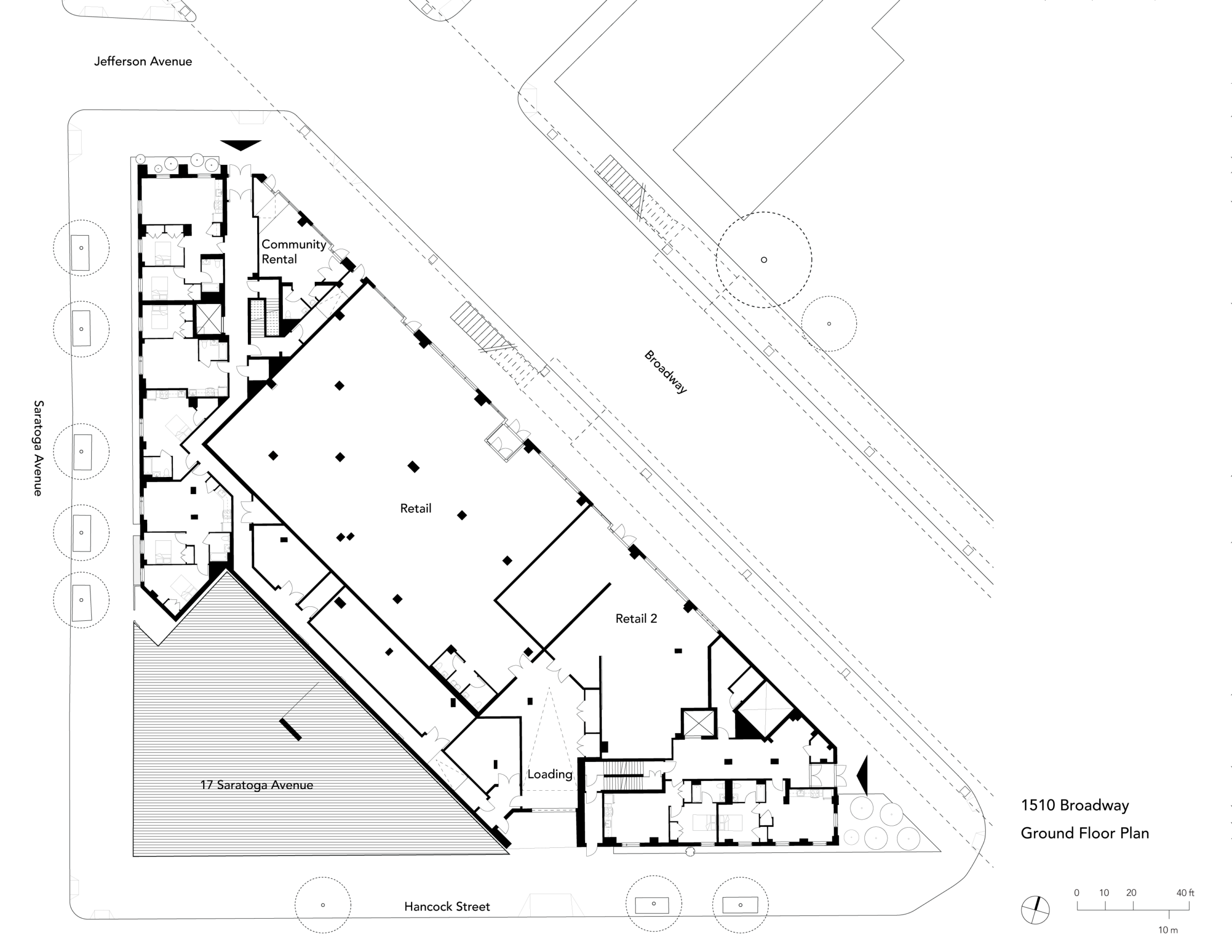
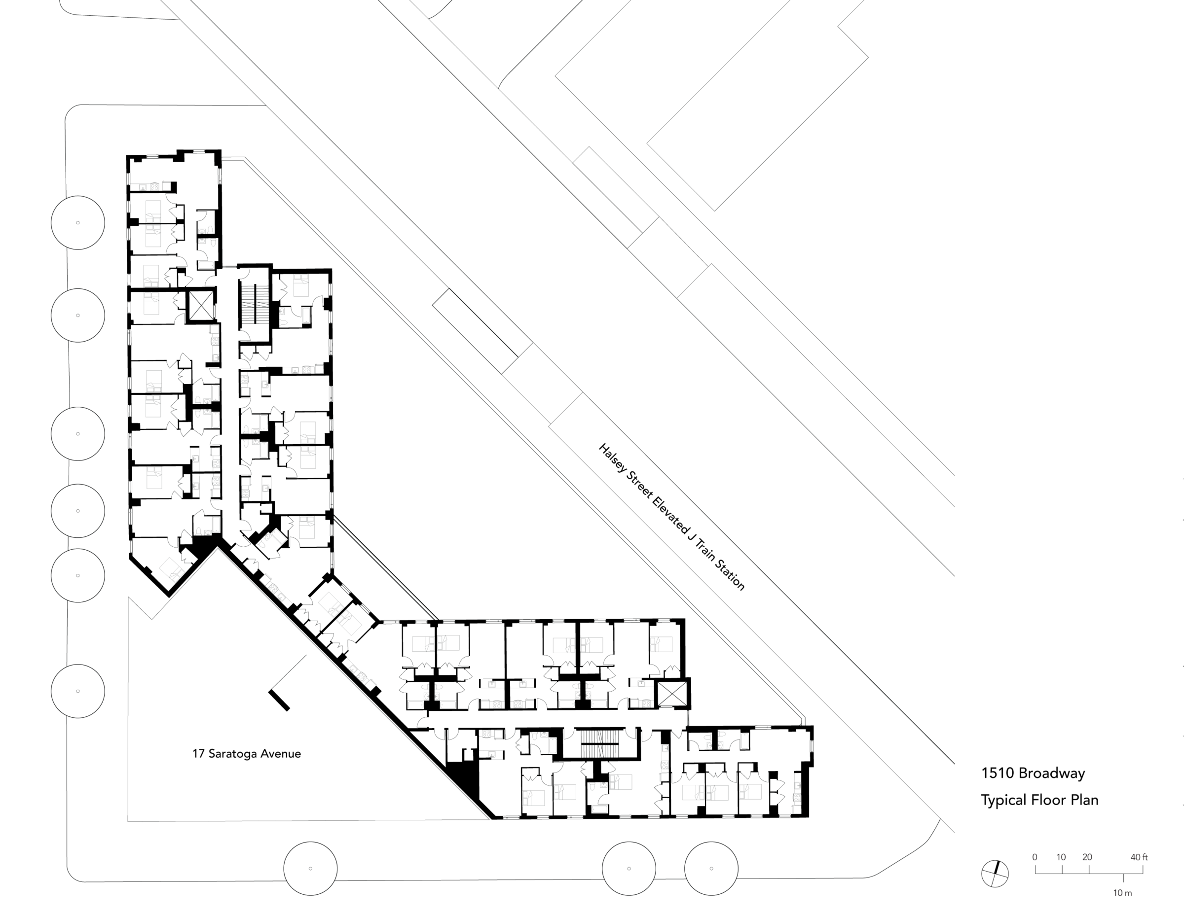
1510 Broadway responds to the urgent need for affordable housing in Brooklyn’s Bushwick and Bed-Stuy neighborhoods. Shaped by the site’s triangular footprint and its proximity to the elevated J train, the building adopts a distinctive V-shaped plan. Rather than placing the eight-story mass directly against the tracks, the design splits the building into two wings that align with Hancock and Saratoga Streets. This move creates a second-floor courtyard—an elevated shared space that encourages community, and brings light and views to all 108 apartments. At ground level, the building fills the site and activates Broadway with a continuous retail frontage. The result is a simple, strategic approach: an active pedestrian edge for the neighborhood, a clear architectural form shaped by its context, and a healthier, more comfortable living environment for residents and families.

The project was developed through NYC Department of Housing, Preservation and Development’s Extremely Low and Low Income Affordability (ELLA) program as a joint effort between MacQuesten Development, East Brooklyn Housing Development Corporation, the Local Development Corporation of East New York and Community Board 16. The project received Enterprise Green Communities and LEED certifications.

Housing 115,630 sf Completed in 2024 Architect

Photographs

Drawings

Type
Housing
Size
115,630 sf
Year
2024
Scope
Ground Up
Role
Architect
LocationLoc.
Urban
 
1510 Broadway, Brooklyn, NY 11221