GLUCK+

1440 Amsterdam

Room above

New York, NY

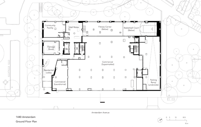
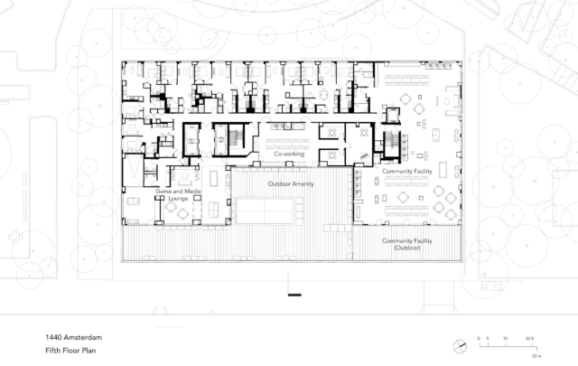
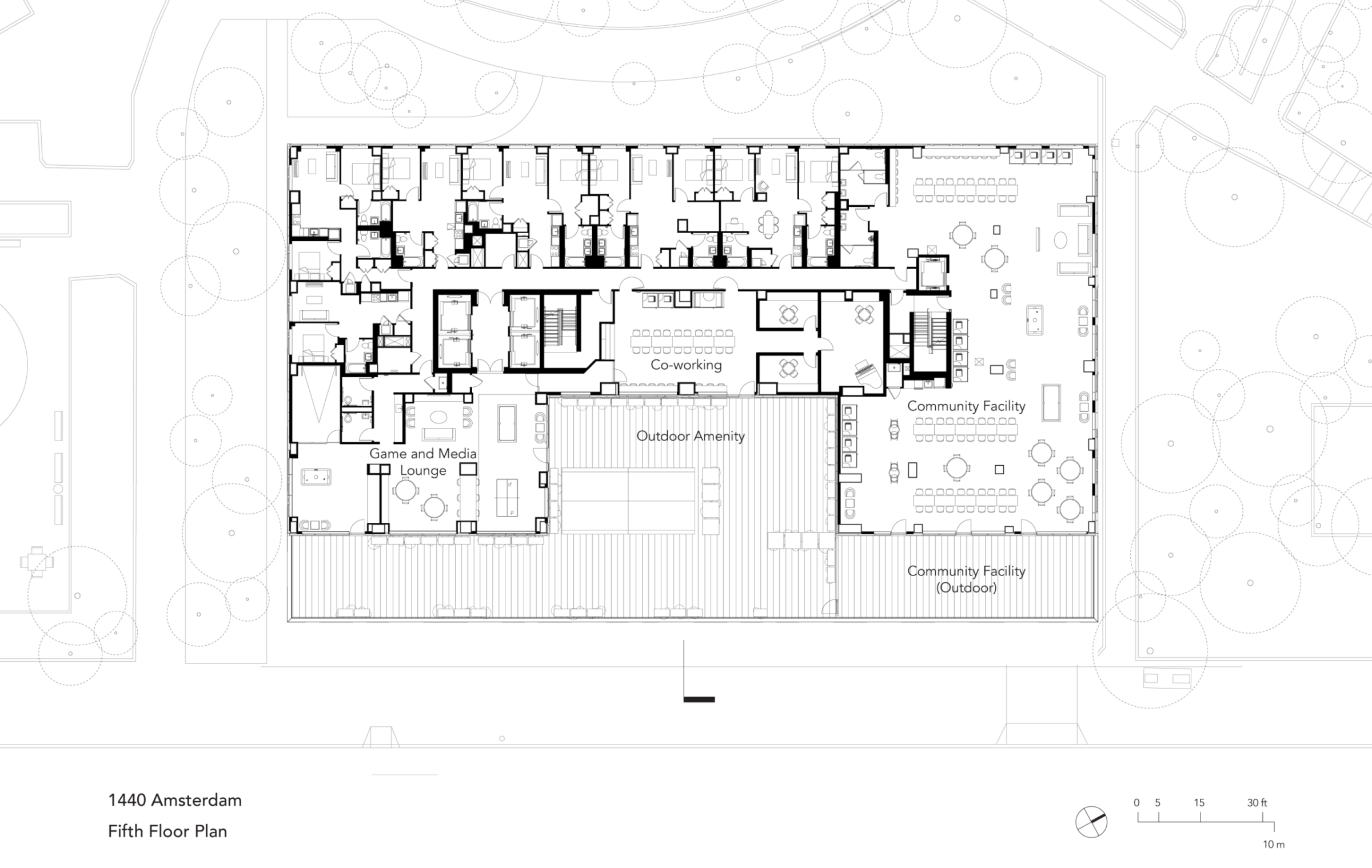
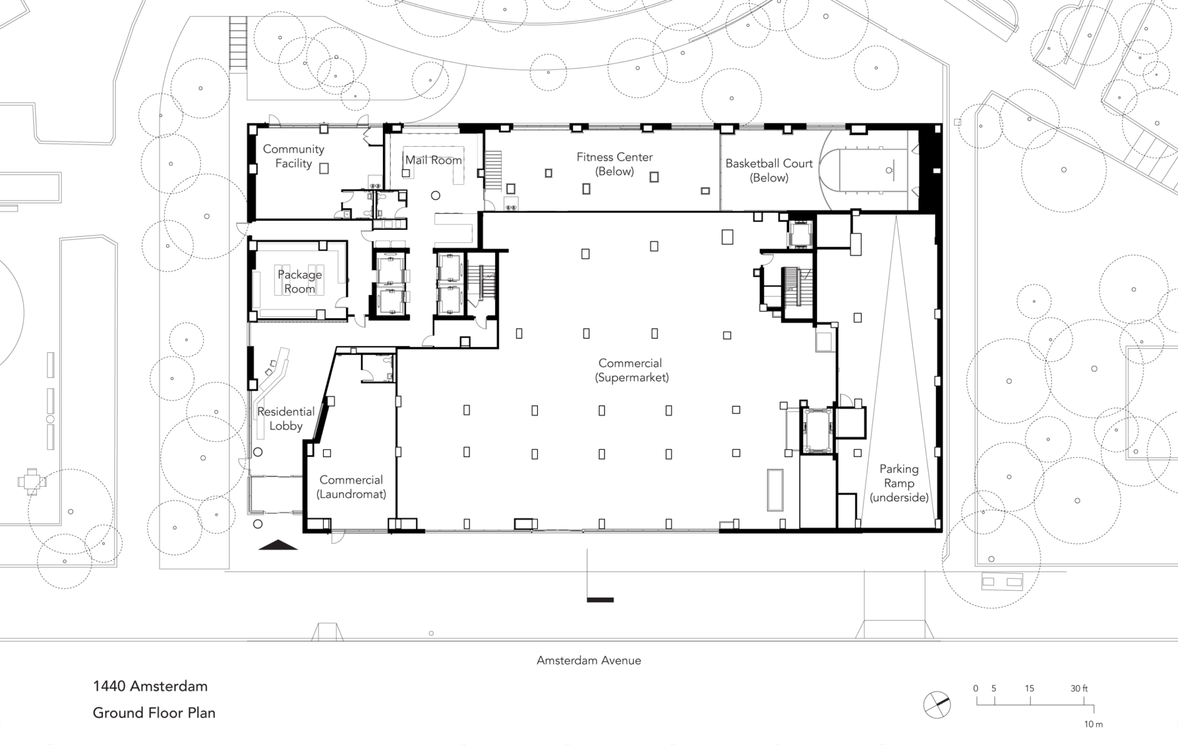
1440 Amsterdam finds opportunity to expand and diversify housing options in New York City by increasing density on an underbuilt site in West Harlem. The vacant lot—directly adjacent to Manhattanville Houses public senior housing, previously occupied by a supermarket that burned to the ground in 2013—is transformed into a 28-story, 490-apartment complex with 30% affordable housing. Wrapping a regular structure, the building’s facade counters repetition and becomes a uniform yet abstract pattern of opaque and clear grass. The new private development provides much-needed housing options and generates funding for the New York City Housing Authority (NYCHA) to invest in its aging public infrastructure.

Housing 469,750 sf Completed in 2025 Architect

Photographs

Drawings

Type
Housing
Size
469,750 sf
Year
2025
Scope
Ground Up
Role
Architect
LocationLoc.
Urban
 
1440 Amsterdam Avenue, New York, NY 10027